Zapytaj eksperta!

Office

Funkcjonalny i prosty system wewnętrznych ścian działowych

 
Office

CHARAKTERYSTYKA

Office marki Aliplast to komorowy, nieizolowany termicznie aluminiowy system przeznaczony do projektowania ścian działowych wewnętrznych. Cechą charakterystyczną tego systemu jest możliwość zastosowania w nim różnorakich wypełnień takich jak szkło, płyta GK, płyta meblowa laminowana. Dzięki specjalnej konstrukcji, system przewiduje miejsce na poprowadzenie przewodów elektrycznych oraz zamontowanie wszelkiego rodzaju włączników, gniazdek i przełączników. W systemie możliwe jest zastosowanie drzwi systemu Econoline (1- i 2-skrzydłowych) poprzez zastosowanie dedykowanego profilu, drzwi całoszklanych na okuciach renomowanych producentów oraz drzwi drewnianych bezprzylgowych na zawiasach ukrytych.

ZALETY SYSTEMU

Prostota i funkcjonalność

System Aliplast Office wyróżnia wysoka estetyka i funkcjonalność przy zachowaniu prostoty konstrukcji i użytkowania. Dzięki swojej estetyce i funkcjonalności, system ten sprawdzi się doskonale jako rozwiązanie do dzielenia dużych przestrzeni biurowych. Możliwość zastosowania różnego typu wypełnień takich jak szkło, płyta GK, płyta meblowa laminowana gwarantuje możliwość dostosowania systemu do każdego biurowego zastosowania. Szybka i prosta prefabrykacja gwarantuje klientom maksymalny poziom jakości przy skróconym czasie produkcji i montażu dzięki zminimalizowaniu czasochłonnych i kosztownych obróbek. Aliplast Office umożliwia także szeroki wybór kolorów takich jak kolory palety RAL (Qualicoat 1518), struktura drewna Aliplast Wood Colour Effect (Qualideco PL-0001), oraz wykończenie anodowane (Qualanod – 1808), również bikolor.

Akustyka

Aliplast Office dzięki specjalnej konstrukcji zapewnia wysoki poziom prywatności w pomieszczeniach biurowych. System ten charakteryzuje się doskonałymi parametrami akustycznymi Rw nawet do 42 dB. Wypełnienia mogą mieć grubość do nawet 18 mm. System jest zbudowany z dwóch oddzielnych wypełnień, a pomiędzy nimi jest przestrzeń, która skutecznie tłumi hałas, jak również umożliwia zabudowę instalacji elektrycznej (gniazdka) czy też żaluzji wewnętrznych międzyszybowych. System może być zintegrowany z drzwiami Econoline lub drzwiami całoszklanymi.

Mnogość wypełnień

Aliplast Office pozwala na zastosowanie wypełnienia szklanego (od 4 mm do 13.8 mm), z płyty meblowej laminowanej (18 mm) oraz płyty GK (gipsowo-kartonowej) o maksymalnej grubości 12,5 mm.

Aliplast Slide Glass Okna i Drzwi Tarnowskie Góry
Rozwiązania specjalne

Ciekawym rozwiązaniem jest możliwość wykorzystania wewnętrznej przestrzeni międzyszybowej na żaluzje. Zaletą takiego umieszczenia żaluzji jest to, że nie są narażone na przypadkowe zniszczenie lub zabrudzenie. Dobrym uzupełnieniem systemu jest możliwość uzupełnienia przestrzeni między wypełnieniami nieprzeziernymi wełną mineralną, co doskonale podnosi parametry akustyczne ścianek.

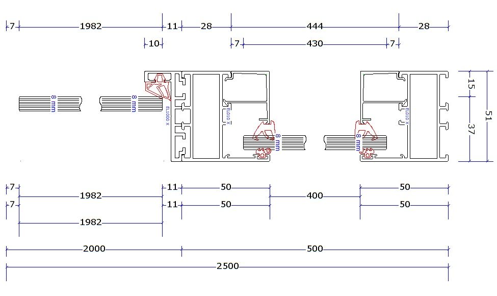
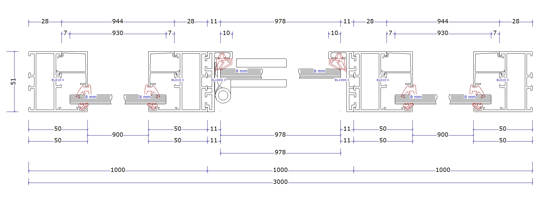
PRZEKROJE

Parametry

PROFIL

ościeżnica: 80 mm

SZYBY

szkło: od 4 mm do 13.8 mm, płyta meblowa laminowana: 18 mm, płyta GK: 12,5 mm

OKUCIE

Systemowe dedykowane dla tego systemu przez firmę Aliplast

KLAMKI

Okucia używane do systemu Econoline

Kolory

Kolory standardowe
Kolory niestandardowe
Kolory drewnopodobne
Tiger - lakiery strukturalne

Galeria