Zapytaj eksperta!

AS 75 Industrial (NL)

Z systemowymi szprosami

 
AS 75 Industrial (NL)

charakterystyka

System AS 75 Industrial został zaprojektowany z myślą o architektach i inwestorach poszukujących rozwiązań, które łączą współczesne standardy techniczne z estetyką klasycznych okien stalowychStanowi idealną odpowiedź na potrzeby rewitalizowanych budynków poprzemysłowych, loftów oraz nowoczesnych obiektów mieszkaniowych i komercyjnych, w których liczy się wyrazisty, surowy charakter.

Trzykomorowy system AS 75 Industrial przeznaczony jest do produkcji izolowanych termicznie okien i drzwi balkonowych. Cechą charakterystyczną systemu są szprosy w wersji płaskiej i przestrzennej. Minimalistyczne wzornictwo odpowiada najnowszym trendom architektonicznym. System AS 75 Industrial spełnia wymagania wszystkich aktualnych norm izolacji termicznej, co potwierdzają certyfikaty renomowanych instytutów badawczych. System może być łączony z innymi rozwiązaniami aluminiowymi, co pozwala na spójną realizację całej stolarki w obiekcie.

ZALETY SYSTEMU

DESIGN & FUNKCJONALNOŚĆ
  • Niski próg balkonowy w wersji R i RU z zachowaną ciągłością uszczelnienia po obwodzie.
  • Dostępne w wariantach U, R, RU i RU z ruchomym słupkiem.
  • Możliwość tworzenia konstrukcji łukowych w tym spawanych.
  • Dwa warianty popychacza okuć: aluminiowy i tworzywowy.
  • Cztery warianty termiczne.
  • Maskownica rowka okuciowego.
  • Designerskie aluminiowe zaślepki odwodnienia.
  • System kompatybilny z rozwiązaniami inteligentnego domu.
  • Możliwość zastosowania antracytowych uszczelek.

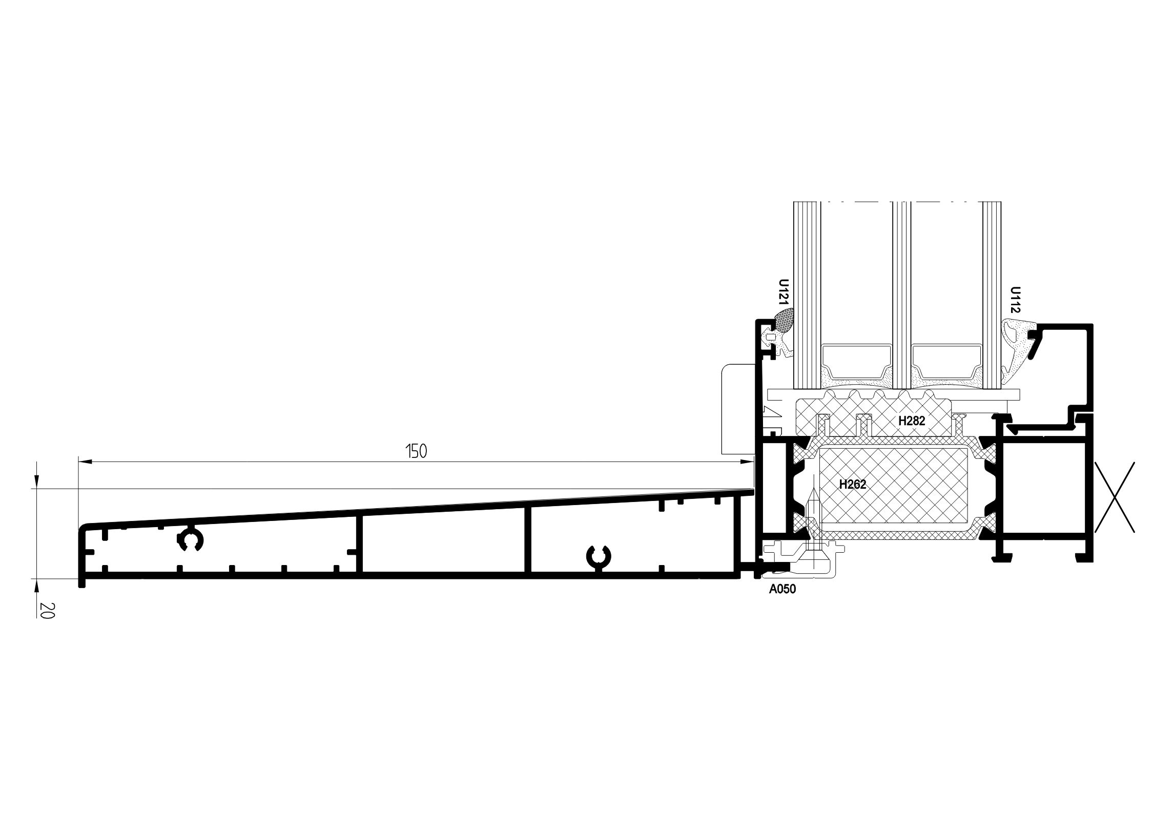
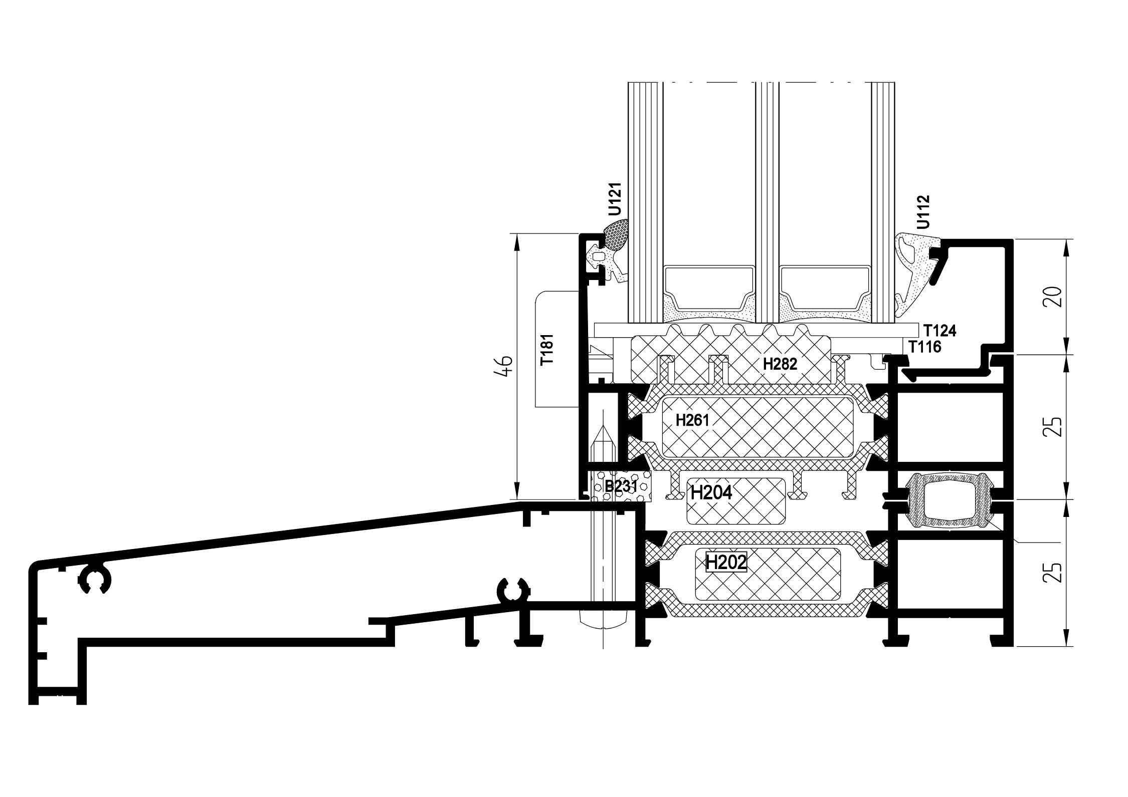
PRZEKROJE

WYBRANE PARAMETRY SYSTEMU

Maksymalna wysokość skrzydła

3000 mm

Maksymalna szerokość skrzydła

1600 mm

Maksymalna masa skrzydła

200 kg

Minimalna widoczna szerokość ramy

54 mm

Głębokość zabudowy

75 mm

Zakres szklenia

16-66 mm

Min. widoczna szerokość skrzydła

38 mm

Opinie o Aluron AS 75 Industrial

System Aluron AS 75 Industrial zbiera pozytywne opinie przede wszystkim za połączenie stylu industrialnego (loftowego) z bardzo dobrymi parametrami technicznymi, w tym wysoką izolacyjnością termiczną i antywłamaniowością. Użytkownicy i eksperci doceniają jego estetykę i solidność wykonania.
Konstrukcja okienna jest uzupełniona przez specjalne szprosy (płaskie lub przestrzenne), co idealnie sprawdza się w renowacjach budynków lub nowych projektach utrzymanych w tym stylu.

Kolory

Kolory standardowe
kolory niestandardowe
KOLORY DREWNOPODOBNE
Lakier strukturalny

Galeria