Zapytaj eksperta!

AS 178HS PRO SLIM ULTRA

Więcej światła – więcej możliwości – Wąski słupek Aluron

 
AS 178HS PRO SLIM ULTRA

Charakterystyka

System drzwi podnoszono-przesuwnych AS 178HS Aluron SLIM w wariancie Ultra (z wąskim słupkiem) to nowoczesne rozwiązanie w dziedzinie ślusarki aluminiowej, które harmonijnie łączy innowacyjny design z najwyższą funkcjonalnością. Zaprojektowany z myślą o tworzeniu imponujących, przeszklonych przestrzeni, doskonale wpisuje się w wymagania współczesnej architektury, gdzie dominują minimalistyczne i eleganckie formy. Wąski słupek o szerokości zaledwie 25 mm oraz doskonała izolacyjność termiczna na poziomie Uw od 0,7 W/m²K to cechy, które wyróżniają ten system.

AS 178HS Ultra to idealny wybór dla tych, którzy poszukują nowoczesnego wzornictwa, funkcjonalności i najwyższej jakości wykonania. Spełnia oczekiwania nawet najbardziej wymagających projektantów i inwestorów, oferując nowoczesny wygląd oraz komfort użytkowania na najwyższym poziomie.

Zalety

Smukły Profil

AS 178HS Aluron SLIM charakteryzuje się wyjątkowo smukłym profilem, który pozwala na maksymalne wykorzystanie powierzchni szklanej. Dzięki temu system umożliwia tworzenie szerokich przeszkleń, co z kolei przekłada się na lepsze doświetlenie wnętrz naturalnym światłem. To idealne rozwiązanie dla nowoczesnych budynków, gdzie duże okna i drzwi tarasowe odgrywają kluczową rolę w projekcie architektonicznym.

Funkcjonalność i Komfort Użytkowania

System drzwi AS 178HS Aluron SLIM w wersji Ultra oferuje nie tylko wyjątkowy wygląd, ale także wysoką funkcjonalność. Mechanizmy podnoszono-przesuwne zastosowane w systemie umożliwiają łatwe i bezpieczne przesuwanie nawet bardzo ciężkich skrzydeł. Wariant ten wyposażono w okucia renomowanych dostawców, które gwarantują płynne działanie oraz długotrwałą niezawodność. Dodatkowo, technologia ANTI-BI-METAL zapewnia prawidłowe funkcjonowanie systemu niezależnie od różnic temperatur, co jest szczególnie istotne w ekstremalnych warunkach.

Wysoka Estetyka

Minimalistyczny design AS 178HS Ultra nadaje budynkom nowoczesny i elegancki wygląd. Dzięki smukłym liniom, system harmonijnie wpisuje się w trendy architektoniczne, stawiające na prostotę i elegancję. To estetyczne rozwiązanie doskonale współgra z nowoczesnymi wnętrzami, podkreślając ich styl i charakter.

Energooszczędność

Pomimo smukłej konstrukcji, AS 178HS Ultra zapewnia doskonałe parametry termoizolacyjne. Niski, ciepły próg w systemie pomaga w utrzymaniu optymalnej temperatury wewnątrz pomieszczeń, co przekłada się na wyższą efektywność energetyczną budynków i mniejsze koszty ogrzewania. Wariant AS 178HS Aluron SLIM wyróżnia się wysoką efektywnością energetyczną, wspierając koncepcję nowoczesnego, energooszczędnego budownictwa.

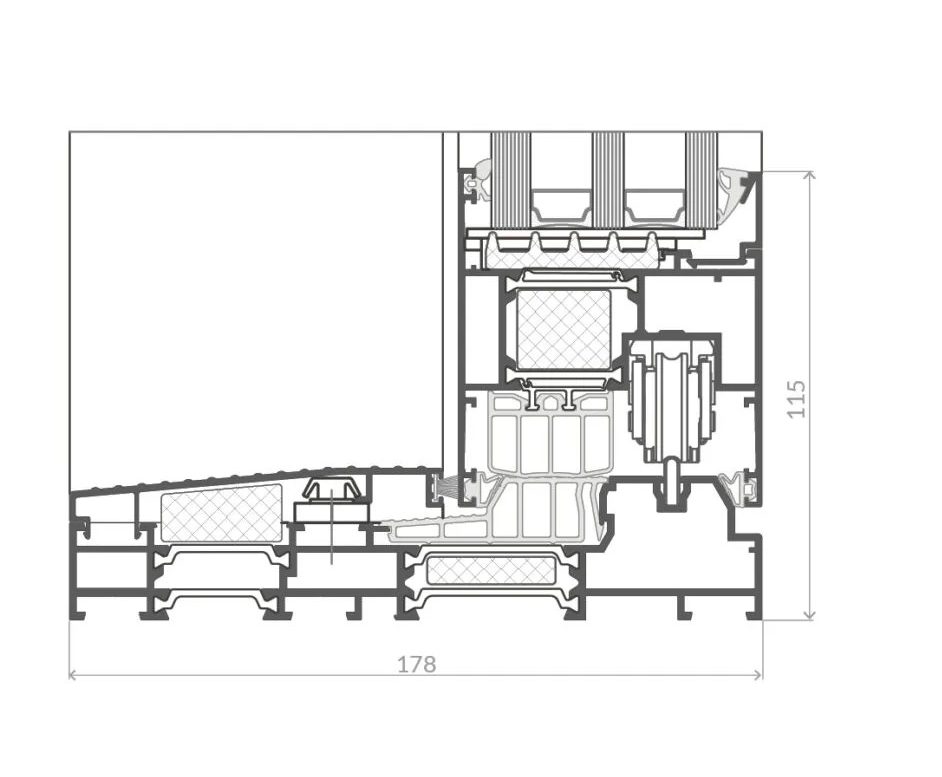
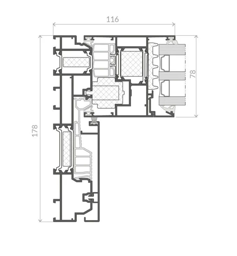
Przekroje

Parametry techniczne

Izolacyjność termiczna Uw

od 0,7 W/m2K

Przepuszczalność powietrza

klasa 4

Wodoszczelność

klasa 8A

Odporność na obciążenie wiatrem

klasa C3/B3

Maksymalna wysokość/szerokość skrzydła

3300 mm

Maksymalna masa skrzydła

600 kg

Minimalna widoczna szerokość ramy

37 mm

Wąski słupek

25 mm

Maksymalna grubość pakietu szybowego

59 mm

Głębokość skrzydła

78 mm

FILM

Opinie o systemie drzwi podnoszono-przesuwnych AS 178 HS Aluron SLIM

Nasi klienci twierdzą, że drzwi podnoszono-przesuwne w systemie AS 178HS Aluron SLIM wyróżniają się płynnym działaniem i wyjątkową szczelnością nawet przy dużych przeszkleniach. Zwracają uwagę na nowoczesny wygląd profili oraz komfort codziennego użytkowania, który przekracza ich oczekiwania. Często podkreślają też, że zastosowane rozwiązania poprawiły izolacyjność termiczną pomieszczeń i pozwoliły ograniczyć straty ciepła w sezonie zimowym. Wniosek nasuwa się sam – to produkt, który naprawdę spełnia oczekiwania.

Kolory

Kolory standardowe
Kolory Niestandardowe
Kolory Drewnopodobne
Lakier strukturalny

Galeria