AS 178HS PRO SLIM
Innowacyjny całoszklany system podnoszono-przesuwny
System drzwi podnoszono–przesuwnych AS 178HS MODERN służy do konstruowania wielkogabarytowych drzwi podnoszono-przesuwnych z izolacją termiczną idealnie pasujących designem do nowoczesnego budownictwa. System posiada możliwości zabudowy i bardzo dobrą termikę, podobnie jak wariant AS 178HS Pro Slim. Zastosowanie po obu stronach konstrukcji tego samego kształtownika poprawia optymalizację materiałową.
Ze względu na szereg zastosowanych udogodnień AS 178HS MODERN zapewnia szybką i łatwą prefabrykację oraz montaż. Zmniejszono ilość elementów potrzebnych do wykonania konstrukcji o ok. 35% w porównaniu do innych rozwiązań dostępnych na rynku.
Wprowadzenie ciętych pod kątem 90 stopni profili ościeżnicy, łączonych za pomocą wkrętów, umożliwia transport ramy w częściach i złożenie konstrukcji na miejscu budowy.
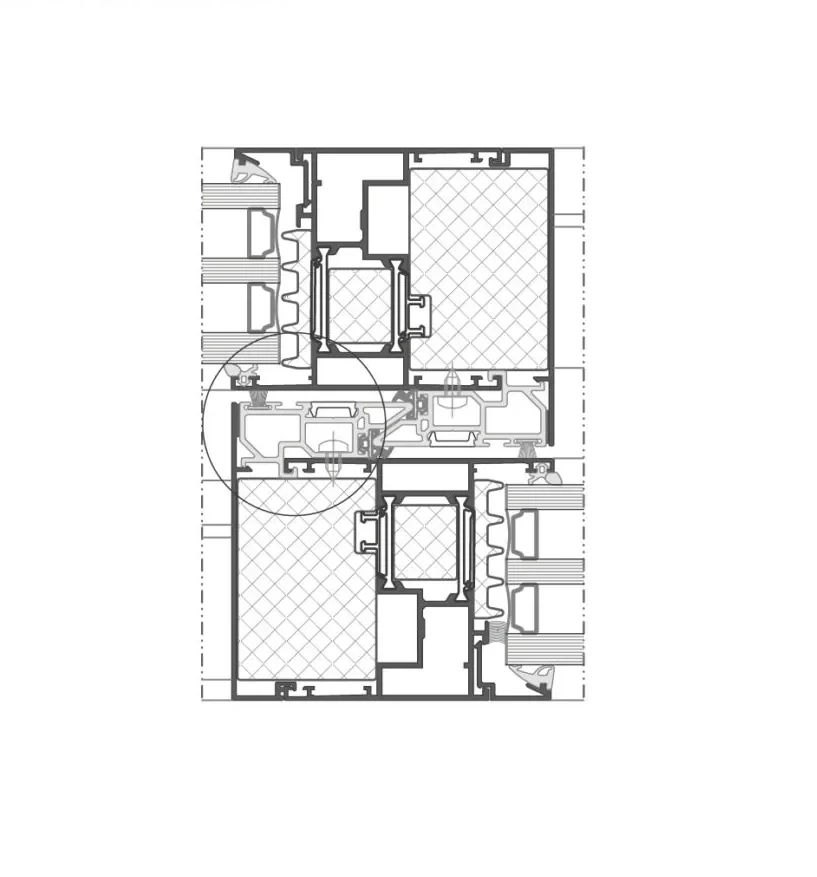
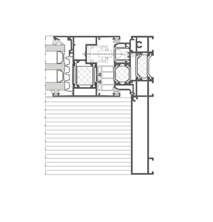
System dostępny jest w schematach A, C, G oraz K. Umożliwia wykonywanie narożników całoszklanych – zarówno wewnętrznych, jak i zewnętrznych – bez konieczności stosowania dodatkowych profili maskujących, dzięki czemu po obu bokach HSa uzyskano elegancką, płaską powierzchnię. Zastosowano montowaną po obwodzie skrzydła uszczelkę akustyczną oraz nowy klips szklenia stałego, co eliminuje potrzebę przykręcania profilu do ościeżnicy. W standardzie dostępne jest także ukryte doszczelnienie skrzydła, bez widocznej zaślepki tworzywowej. System umożliwia automatyzację przesuwu skrzydeł drzwiowych i jest kompatybilny z odwodnieniem liniowym, systemową moskitierą, balustradą całoszklaną oraz skrzydłem wentylacyjnym. Dodatkowo możliwe jest zastosowanie okuć z zaczepem ukrytym w zasuwnicy, bez konieczności dodatkowego frezowania pod kieszeń zaczepu, a także ukrycie ościeżnicy w warstwie ocieplenia.
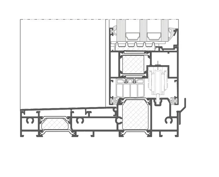
Mechanizm jezdny oraz część stała konstrukcji są całkowicie ukryte w posadzce. Użytkownicy widzą jedynie niewielką szczelinę o szerokości 9 mm, która zapewnia łatwy i swobodny przesuw skrzydła drzwiowego.
Rozwiązanie szczelinowe jest wariantem w 100% bezprogowym. Ukrycie wszystkich mechanizmów pod powierzchnią podłogi nie tylko podnosi walory estetyczne, ale także zwiększa funkcjonalność i komfort codziennego użytkowania przestrzeni. Co więcej, rozwiązanie szczelinowe zapewnia całkowitą swobodę aranżacji posadzki na styku tarasu i pomieszczenia.


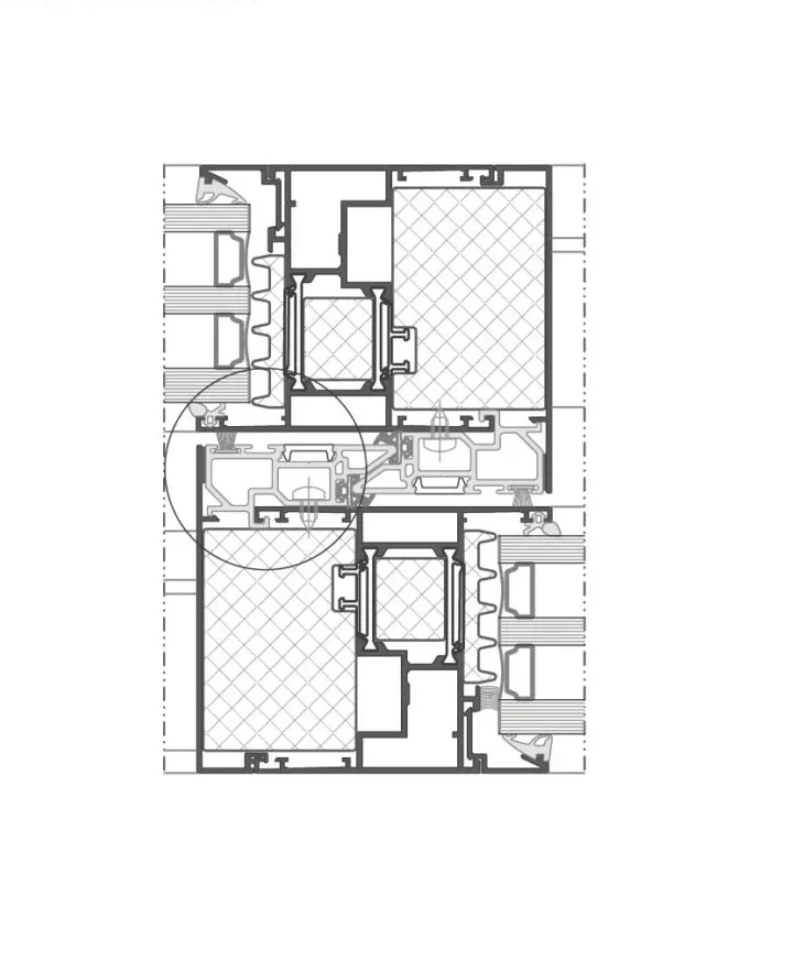
System dostępny w wariantach ze słupkiem: Standard, 50 mm i 25 mm dla najbardziej wymagających – znacząco zwiększona powierzchnia przeszklenia.


Konstrukcje wykonywane są na ramie typu MONORAIL, zapewniającej doskonałą transparentność części stałej HS-a.
Większa powierzchnia szkła sprawia, że do wnętrza wpada więcej naturalnego światła i przestrzeń wygląda na większą.
|
Profil |
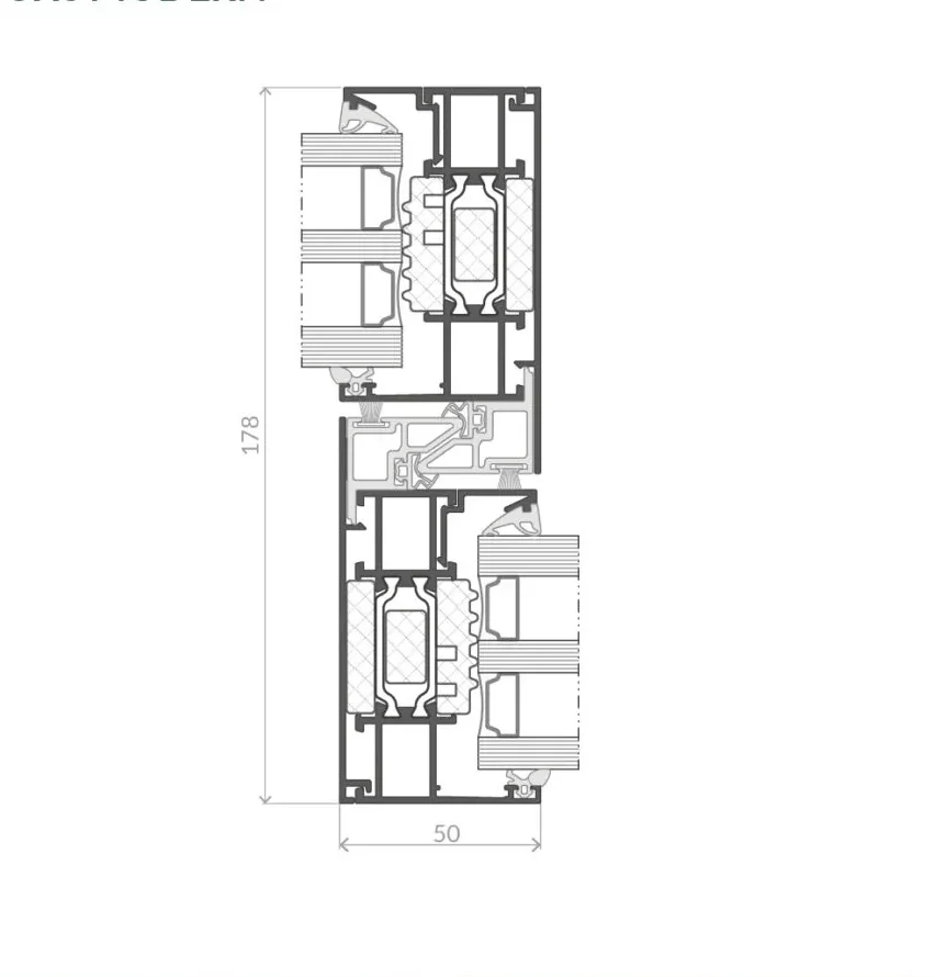
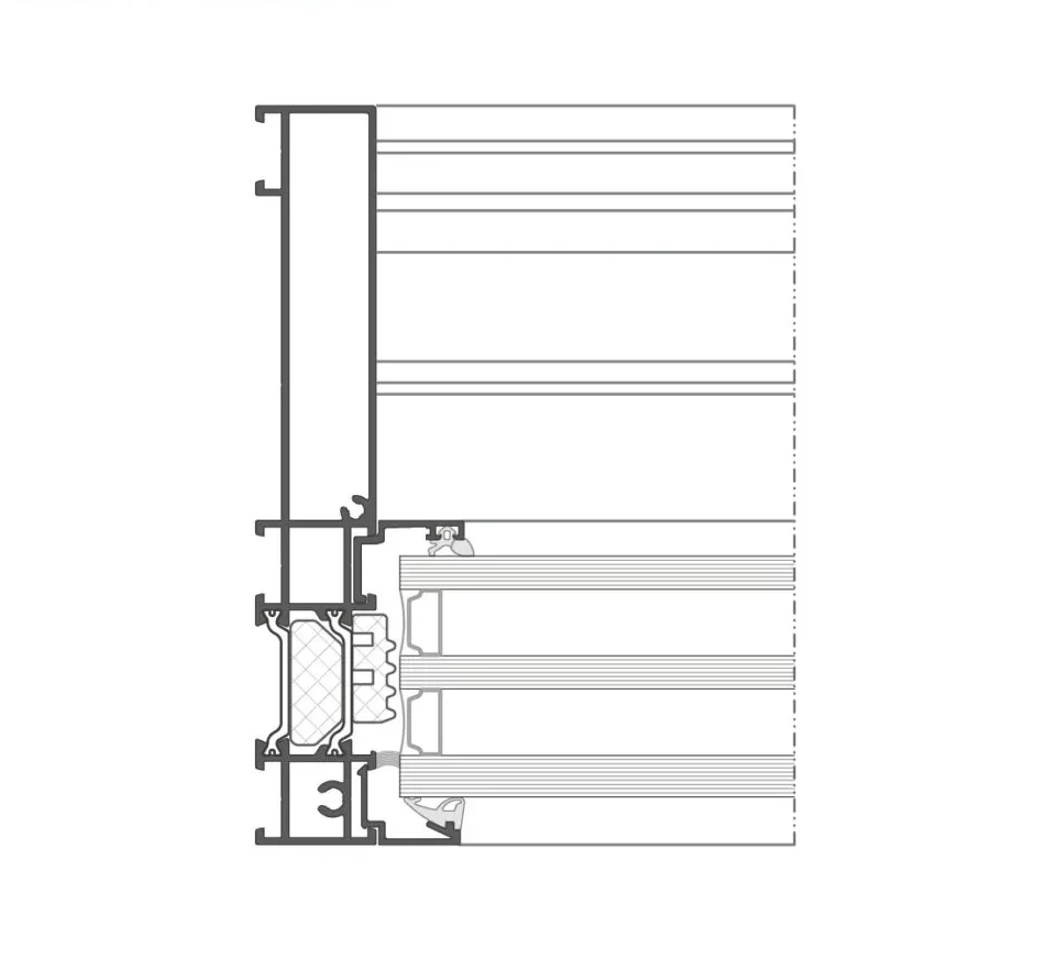
Głębokość skrzydła 78 mm |
|
Skrzydła |
Max. wysokość/szerokość skrzydła: 3300 mm |
|
Max. masa skrzydła |
600 kg |
|
Max. grubość pakietu szybowego |
59 mm |
|
Wąski słupek |
25 mm / 50 mm |
Użytkownicy cenią system AS 178HS w wersji MODERN przede wszystkim za wysoki komfort codziennego użytkowania i poczucie przestrzeni, jakie dają bardzo duże przeszklenia. Wskazują, że wnętrza są lepiej doświetlone, bardziej otwarte na otoczenie i wizualnie większe, bez kompromisów w zakresie izolacyjności cieplnej. Dużym atutem jest brak progu, który znacząco podnosi wygodę i bezpieczeństwo – szczególnie w domach z dziećmi, osobami starszymi lub przy intensywnym użytkowaniu tarasu. Użytkownicy zwracają też uwagę na nowoczesną, minimalistyczną estetykę systemu: wąski słupek środkowy, ograniczoną liczbę widocznych elementów oraz spójne, eleganckie detale. W praktyce doceniana jest płynna i cicha praca skrzydeł nawet przy bardzo dużych gabarytach, a także wysoka szczelność, która dobrze sprawdza się przy wietrznej pogodzie i intensywnych opadach. System postrzegany jest jako solidny, trwały i „bezproblemowy” w codziennym użytkowaniu, co przekłada się na wysoki poziom satysfakcji w dłuższej perspektywie.