AS 178HS PRO SLIM
Innowacyjny całoszklany system podnoszono-przesuwny
System drzwi podnoszono-przesuwnych AS 86 SLIDE.
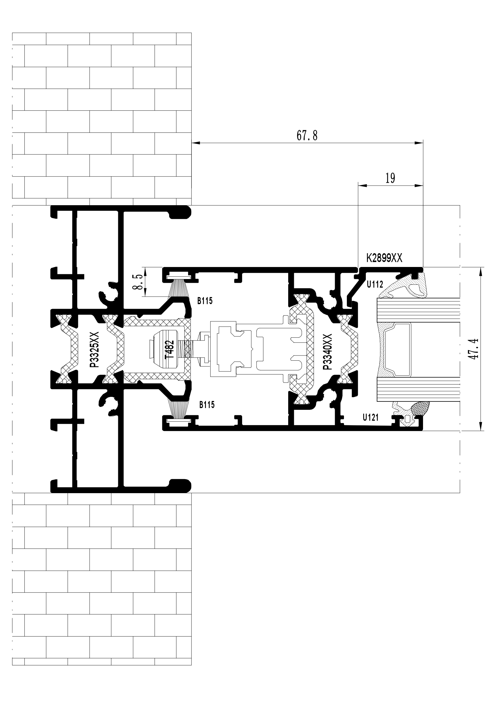
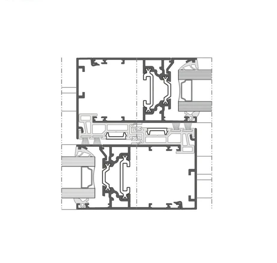
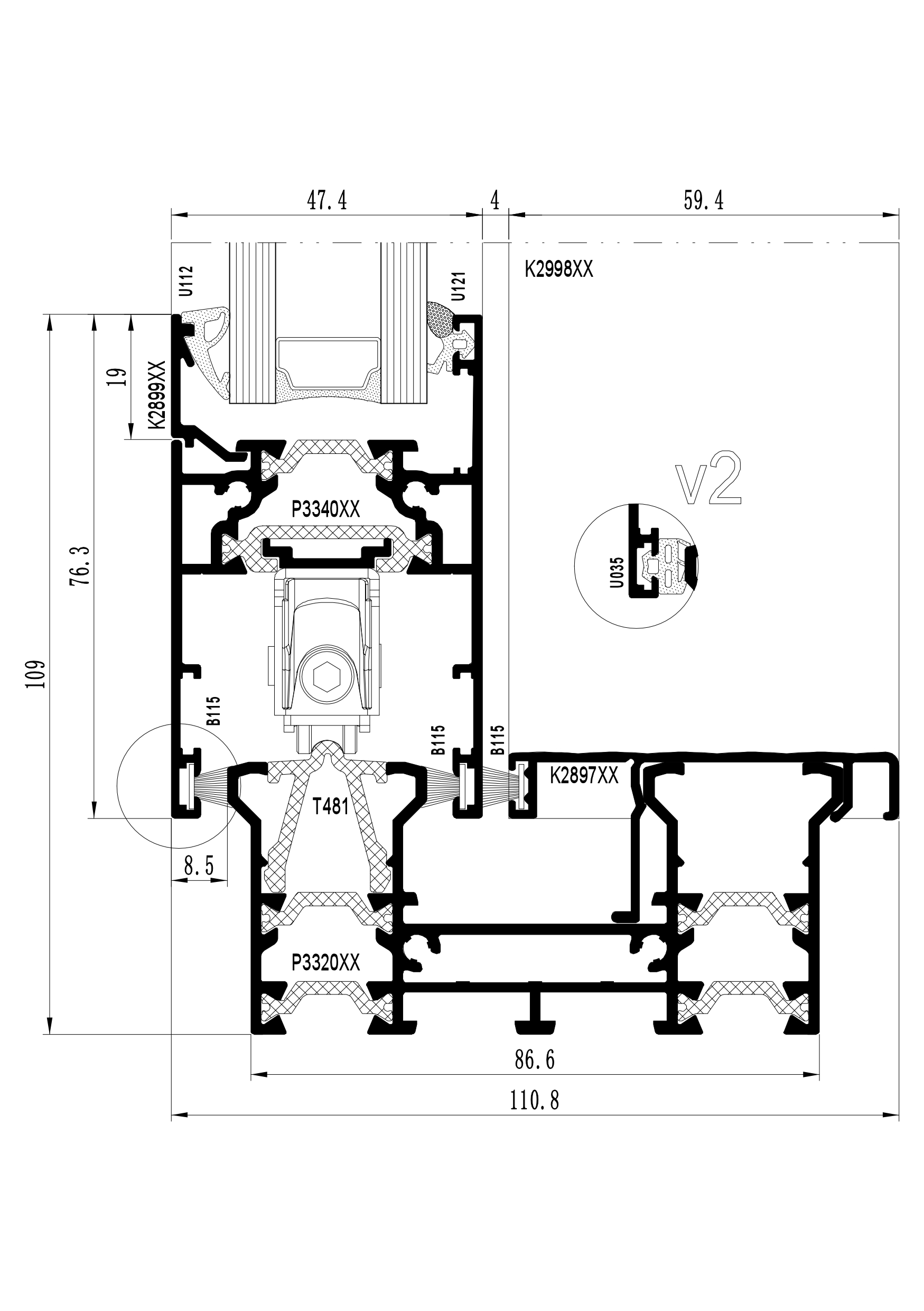
AS 86 Slide to rozwiązanie przeznaczone do wykonywania drzwi przesuwnych oraz podnoszono-przesuwnych z izolacją termiczną, opartych na ramach 2-, 3- i 4-torowych. System został zaprojektowany głównie z myślą o inwestycjach w regionach o łagodnym, cieplejszym klimacie.
Można go stosować we wszystkich dostępnych wariantach zabudowy. W zależności od potrzeb projektu istnieje możliwość wyboru jednego z dwóch typów ościeżnicy: HI lub ECO. Wersja HI zapewnia wyższy poziom izolacji dzięki zastosowaniu dwóch przekładek termicznych, tworzących podwójną barierę cieplną. Natomiast wariant ECO to bardziej ekonomiczne rozwiązanie, wyposażone w jedną przekładkę termiczną umieszczoną centralnie.
System drzwi podnoszono-przesuwnych AS 86 SLIDE można stosować we wszystkich dostępnych wariantach zabudowy. W zależności od potrzeb projektu istnieje możliwość wyboru jednego z dwóch typów ościeżnicy: HI lub ECO. Wersja HI zapewnia wyższy poziom izolacji dzięki zastosowaniu dwóch przekładek termicznych, tworzących podwójną barierę cieplną. Natomiast wariant ECO to bardziej ekonomiczne rozwiązanie, wyposażone w jedną przekładkę termiczną umieszczoną centralnie.
AS 86 Slide dostępny jest we wszystkich popularnych schematach zabudowy, a jego kompatybilność z systemem AS M oraz odwodnieniem liniowym zwiększa zakres zastosowań.
Dodatkowo istnieje możliwość projektowania konstrukcji jedno- i dwutorowych, w tym nowoczesnych rozwiązań typu pocket door – galandage – które pozwalają na całkowite ukrycie skrzydła w ścianie i maksymalne otwarcie przestrzeni.
System Aluron AS 86 Slide łączy nowoczesny design z praktyczną funkcjonalnością, oferując szerokie możliwości dopasowania do różnych projektów architektonicznych. Konstrukcja może być rozbudowana o naświetla boczne i górne, co pozwala lepiej doświetlić wnętrza i nadać bryle lekkości. Producent przewidział dwa sposoby prefabrykacji ościeżnicy i skrzydła – poprzez kołkowanie lub skręcanie – co ułatwia montaż i dostosowanie procesu produkcji do potrzeb wykonawcy.
Profile ościeżnicy mogą być docinane pod kątem 90° lub 45°, co przekłada się na większą elastyczność projektową oraz sprawny montaż. Zastosowanie listew przyszybowych upraszcza proces szklenia i ewentualną wymianę szyb w przyszłości.
System umożliwia zastosowanie okuć z zaczepem ukrytym w zasuwnicy bez konieczności frezowania dodatkowych kieszeni, co przekłada się nie tylko na oszczędność czasu podczas produkcji, ale również na wysoką estetykę wykończenia gotowego produktu. Dodatkowym atutem jest szeroki wybór okuć. Dostępne są m.in. okucia renomowanych producentów, takich jak Master, Roto a także dedykowane rozwiązania marki Master przeznaczone specjalnie do wersji podnoszono-przesuwnych.


|
Max. wysokość konstrukcji |
2700 mm |
|
Max. szerokość skrzydła |
2500 mm |
|
Max. masa skrzydła |
200 kg |
|
Zakres szklenia |
20-36 mm |
|
Głębokość skrzydła |
47 mm |
|
Głębokość konstrukcyjna wariantu 2-jezdniowego |
110 mm |
|
Głębokość konstrukcyjna wariantu 3-jezdniowego |
174 mm |
|
Izolacyjność termiczna Ud konstrukcji (2000 mm x 2000 mm) |
od 1,8 W/m2K |
|
Przepuszczalność powietrza |
klasa 3 |
|
Wodoszczelność |
klasa 7A |
|
Odporność na obciążenie wiatrem |
klasa C3 |