Zapytaj eksperta!

Steel Look ST1000

Izolowany termicznie system okienno-drzwiowy z profilami upodobniającymi konstrukcję do profili stalowych

 
Steel Look ST1000

charakterystyka

Steel Look ST1000 to system okienno-drzwiowy z izolacją termiczną charakteryzujący się gładką i smukłą linią profila. Specjalnie opracowany kształt profila sprawia, że okna i drzwi na bazie tego systemu są niezwykle podobne do konstrukcji stalowych dzięki czemu wyróżniają się industrialnym, nowoczesnym charakterem. Kształt profila (upodobniający konstrukcję do profili stalowych) sprawia, że Aliplast Steel Look ST1000 jest produktem unikatowym na rynku. System Steel Look ST1000 oprócz nowoczesnego designu wyróżnia się także dobrymi właściwościami termicznymi na poziomie 2,56 W/m2k. System charakteryzuje się ponadto szerokimi możliwościami personalizacji dzięki bogatej palecie RAL, kolorów strukturalnych, kolorów drewnopodobnych (Aliplast Wood Colour Effect), anodowanych oraz bikolor. System Aliplast Steel Look ST1000 sprawdzi się doskonale w nowoczesnym budownictwie.

ZALETY SYSTEMU

Unikatowy design

Zastosowanie profili aluminiowych o specyficznym kształcie (upodabniających konstrukcję do profili stalowych) sprawia, że Aliplast Steel Look ST1000 jest produktem o unikatowym designie. Zastosowane profile charakteryzują się gładką i smukłą linią dzięki czemu nadają całej konstrukcji industrialny, nowoczesny charakter. Dzięki szerokiemu wyborowi kolorystyki, system Aliplast Steel Look ST1000 pozwala na idealne dopasowanie okien i drzwi do elewacji i wnętrza. System Aliplast Steel Look ST1000 doskonale nadaje się do budowy okien jednoskrzydłowych oraz dwuskrzydłowych, otwieranych do wewnątrz. Jego nietypowy, charakterystyczny design sprawia, że jest on wręcz idealną propozycją do stosowania w nietypowych projektach. System idealnie prezentuje się także w witrynach stałych, na szkle z szybą pojedynczą oraz szkle zespolonym.

Aliplast Steel Look Okna i Drzwi Tarnowskie Góry
Jeszcze więcej światła

Wyjątkowa, specjalnie opracowana konstrukcja okna i drzwi wykorzystująca smukłe i gładkie profile aluminiowe sprawia, że do Twoich pomieszczeń trafi jeszcze więcej promieni słonecznych. System Aliplast Steel Look ST1000 to charakteryzuje się także solidną i trwałą konstrukcją idealnie sprawdzającą się w codziennym użytkowaniu.

Aliplast Steel Look ST1000 Okna i Drzwi Tarnowskie Góry
Mnogość możliwości

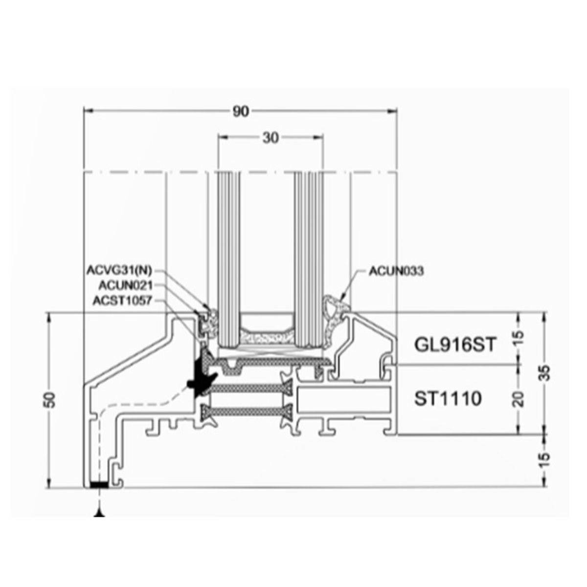
Aliplast Steel Look to rozwiązanie o szerokich możliwościach. Wariant ST1110 pozwala na montaż od zewnątrz dzięki pogłębionej ramie z noskiem, a ST1010 montaż w świetle otworu z zastosowaniem pogłębionej ramy. Z kolei ST1210 daje możliwość skorzystania z niskiej ramy a ST1012 z wysokiej, dzięki której jest dużo miejsca od wewnątrz na zawiasy.

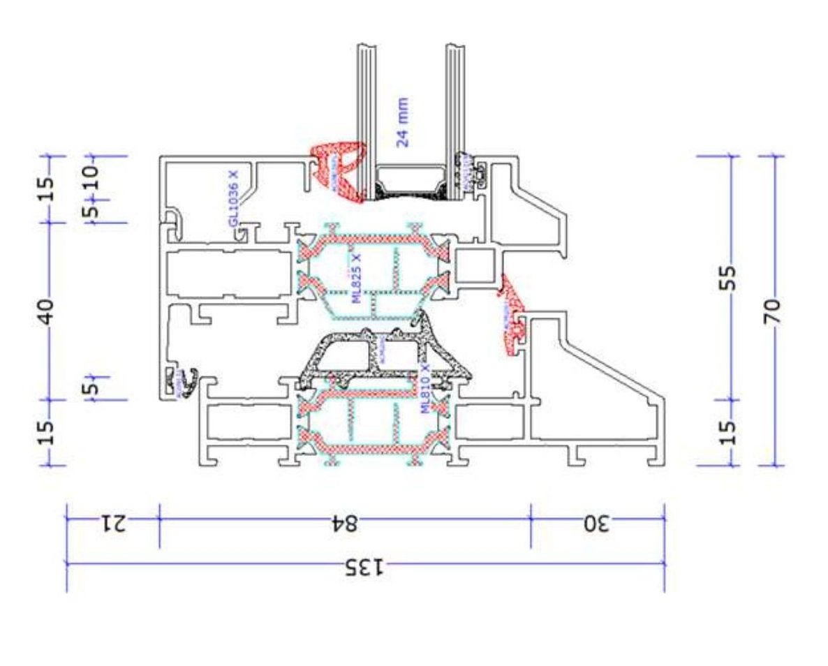
PRZEKROJE

Warianty profilu

Parametry systemu

Głębokość ościeżnicy

90 mm

Głębokość skrzydła

74,4 mm

Grubość szklenia

5-43 mm

Izolacyjność termiczna Uf*

Uf od 1,85 W/m2K

Przepuszczalność powietrza

Klasa 4; PN-EN 12207

Obciążenie wiatrem

Klasa 7A(300Pa), PN-EN 12210

Wodoszczelność

Klasa C4 (1600 Pa); PN-EN 12208

SZYBY

standardowo pakiet 4/18/4/18/4  Ug=0,5 W/m2K, ciepła ramka Swisspacer | Możliwość stosowania zespolenia od 14-68 mm | Do wyboru szyby: bezpieczne, hartowane, antywłamaniowe, przeciwsłoneczne, akustyczne, ornamentowe.

KLAMKI

Okna - standardowo: klamki aluminiowe Hoppe Secustic: w kolorze: srebrnym, białym 9016, brązowym 8019, antracyt 7016, czarna matowa 9005, złota, inox.

OKUCIE

GU | Dodatkowo okno wyposażone: w zaczepy antywyważeniowe, podnośnik skrzydła, mikrowentylację i blokadę błędnego położenia klamki.

kolory

Kolory standardowe
kolory niestandardowe
KOLORY DREWNOPODOBNE
TIGER - lakier strukturalny

Galeria