Zapytaj eksperta!

Genesis Steel

System okienny o industrialnej estetyce i wysokiej termice

 
Genesis Steel

charakterystyka

Okno Aliplast Genesis Steel to rozwiązanie łączące industrialną estetykę z bardzo dobrymi parametrami termicznymi i szerokimi możliwościami konstrukcyjnymi. System stanowi realną alternatywę dla innych rozwiązań typu Max Light – przy zachowaniu zbliżonego efektu wizualnego (wąskie profile, stylistyka „steel look”), zapewniając jednocześnie lepszą termikę, większą funkcjonalność i korzystniejszą cenę. Rozwiązanie szczególnie rekomendowane na rynek niderlandzki – wpisuje się w estetykę Beneluksu i spełnia aktualne wymagania techniczne w zakresie izolacyjności i funkcjonalności.

ZALETY SYSTEMU

Doskonały stosunek termiki do ceny
  • Bardzo dobre parametry izolacyjności termicznej (system odpowiada aktualnym wymaganiom rynku NL i Beneluksu).
  • Możliwość wykonania pełnego zakresu konstrukcji okiennych.
  • Skrzydło przystosowane pod okucie w rowku PVC.
  • Większe możliwości statyczne w porównaniu do rozwiązań 70 mm.
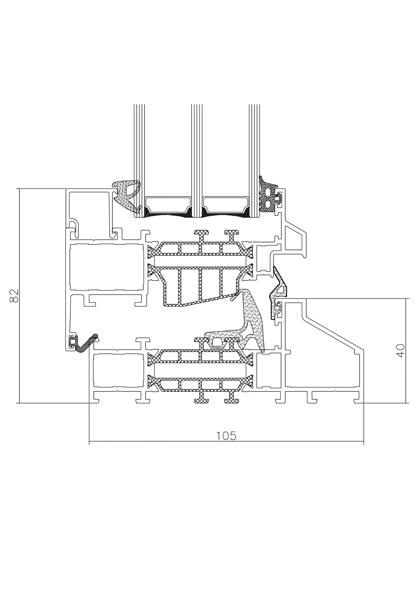
  • Głębokość ramy: 84 mm
Doskonały stosunek termiki do ceny. Okna i drzwi Genesis 75. Profilnet Tarnowskie Góry Śląsk Silesia
Współgra z ProThermo 75 i RC3

Dzięki różnorodności profili oferowanych w ramach systemu, możliwe jest projektowanie wszelakich konstrukcji okiennych, drzwi i witryn, wykorzystywanych zarówno w budynkach użyteczności publicznej, jaki i w zabudowie jedno i wielorodzinnej. Profile Genesis są kompatybilne z drzwiami ProThermo 75 oraz SafeThermo 75 – nowością na rynku – drzwiami bezpiecznymi w klasie RC3 z certyfikatem IFT Rosenheim.

Współgra z Prothermo 75 i RC3. Okna i drzwi Genesis 75. Profilnet Tarnowskie Góry Śląsk Bytom Katowice
Okna energoszczędne

Zastosowanie dodatkowej uszczelki termicznej obok standardowej uszczelki centralnej, pozwoliło na uzyskanie bardzo wysokiej szczelności okien, zachowując przy tym nowoczesny design. To połączeniem najwyższej ergonomii użytkowania oraz nowoczesnej estetyki profili, dzięki której możliwe jest projektowanie konstrukcji okna o indywidualnym charakterze i nowatorskim wyglądzie. Dopracowana konstrukcja systemu Aliplast Genesis zapewnia stały komfort cieplny i akustyczny niezależnie od pory roku.

PRZEKROJE

Opinie o Aliplast Genesis Steel

Użytkownicy systemu Aliplast Genesis Steel najczęściej zwracają uwagę na bardzo dobrą termoizolację oraz wysoką jakość wykonania, która przekłada się na realne oszczędności energii. Parametry techniczne tego systemu w pełni potwierdzają te opinie. W recenzjach regularnie pojawia się także wątek wygodnej, intuicyjnej obsługi oraz cichej i płynnej pracy okuć. Zarówno właściciele domów jednorodzinnych, jak i inwestorzy doceniają rozwiązania Genesis Steel za trwałość, bezawaryjność oraz komfort użytkowania, który utrzymuje się przez długie lata.

kolory

Kolory standardowe
kolory niestandardowe
KOLORY DREWNOPODOBNE
TIGER - lakier strukturalny

Galeria