Slide Glass
System przesuwny do zabudowy szklanej bez izolacji termicznej
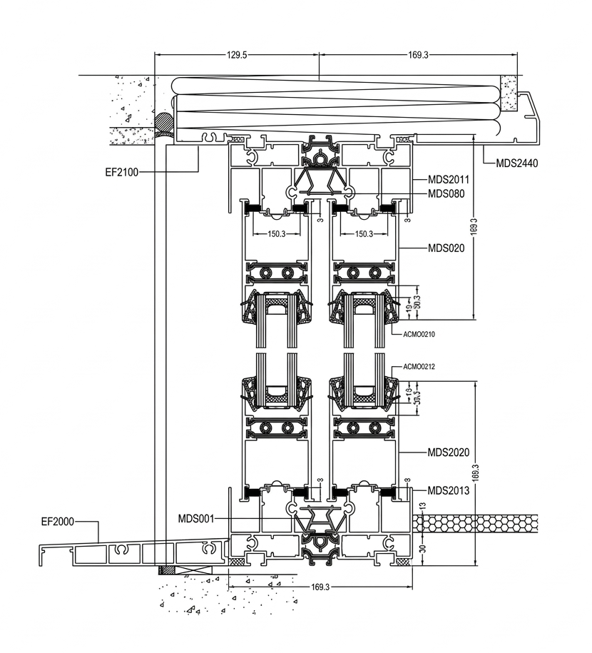
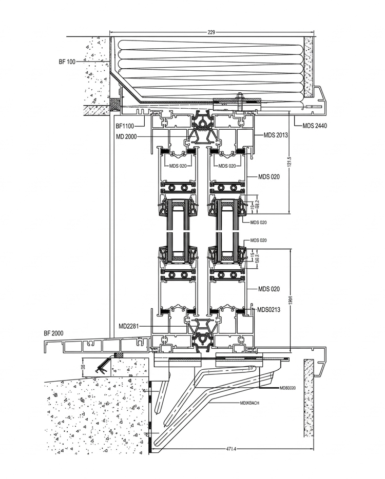
Modern Slide to smukły i nowoczesny system przesuwny o podwyższonej izolacyjności termicznej pozwalający na projektowanie konstrukcji przesuwnej na ramach 2,3,4 torowych. System Modern Slide przeznczony jest do stosowania w obiektach użyteczności publicznej oraz obiektach budownictwa mieszkaniowego i indywidualnego. System wyposażony jest w unikatowe rozwiązanie konstrukcyjne Galendage dzięki czemu możliwe jest otwarcie drzwi poprzez niemalże całkowite schowanie skrzydeł w komorach w murze budynku. Dzięki minimalnej szerokości połączenia dwóch skrzydeł (35 mm) oraz profili dostępnych w trzech wersjach dostosowanych do różnych wymagań wytrzymałościowych, system Modern Slide charakteryzuje się lekkością i nowoczesnością.
Modern Slide to ciepły system przesuwny charakteryzujący się bogatą ilością rozwiązań. Dzięki rozwiązaniu technicznemu Galandage możliwe jest niemalże całkowite ukrycie skrzydeł przesuwnych w ścianie budynku – dzięki czemu zmaksymalizowane zostaje światło przejścia po otwarciu skrzydeł konstrukcji. Z kolei rozwiązanie Monoblock pozwala na montowanie w warstwie ocieplenia, która zlokalizowana jest wewnątrz pomieszczeń. System umożliwia konstruowanie skrzydeł do 250 kg i zaszklenie pakietem o grubości do 32 mm. Wybierając system Modern Slide wybierasz jeden z najbardziej innowacyjnych i elastycznych systemów przesuwnych na rynku!
System Modern Slide spełnia wymagania rynku francuskiego w zakresie estetyki i najwyższej jakości wykonania. To jeden z najczęściej wybieranych przez klientów z Francji systemów przesuwnych. Na rynku francuskim bardzo ciekawym i popularnym rozwiązaniem jest możliwość schowania całego skrzydła w murze – tzw. Galandage. Modern Slide spełnia oczekiwania klientów z terenu Francji.
Modern Slide oferuje 4 możliwe schematy otwierania. Decydując się na skorzystanie z tego systemu wybrać można: Schemat D (dwa skrzydła aktywne), Schemat D+G (trzy skrzydła aktywne), Schemat F (cztery skrzydła aktywne) i System 6 skrzydeł aktywnych. Maksymalna możliwość zaszklenia wynosi: 4000×2500 mm dla konstrukcji dwuskrzydłowych, 4000×2700 mm dla trzyskrzydłowych oraz 4000×2400 mm dla czteroskrzydłowych.
|
Profil |
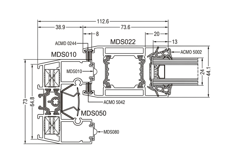
ościeżnica: 73 mm | skrzydło: 41 mm |
|
Szyby |
Standardowo pakiet szybowy 4/16/4 Ug=1,0 Wm2K, ciepła ramka Swissspacer. Możliwości stosowania zespolenia od 24 do 32 mm | Do wyboru szyby: bezpieczne, hartowane, antywłamaniowe, przeciwsłoneczne, akustyczne, ornamentowe |
|
Okucie |
Okucie Aliplast, ryglowanie 1, 2 lub 3-punktowo. |
|
Klamki |
Klamka wpuszczona w profil w kolorze białym, czarnym lub srebrnym. |
|
Izolacyjność termiczna Uf |
Uf od 1,50 W/m2K |
|
Przepuszczalność powietrza |
Klasa 3; PN-EN 12207 |
|
Obciążenie wiatrem |
Klasa C1 (400Pa); PN-EN 12210 |
|
Wodoszczelność |
Klasa 6A (250Pa); PN-EN 12208 |
|
Ciężar skrzydła |
do 250 kg |
Konstrukcja profili pozwala na wymianę stolarki bez konieczności demontażu starych ościeżnic. Specjalne profile uzupełniające i maskownice zewnętrzne eliminują potrzebę obróbki tynkarskiej.

Modern Slide oferuje specjalny wariant, w którym skrzydła chowają się całkowicie wewnątrz ściany budynku, otwierając pełne światło przejścia.


System Modern Slide Monoblock oferuje ramy o różnych szerokościach zabudowy, dopasowanych do standardowych wymiarów izolacji we Francji.
