AS 178HS PRO SLIM ULTRA
Więcej światła – więcej możliwości – Wąski słupek Aluron
Aluron AS 178HS PRO SLIM to całoszklany system podnoszono-przesuwny łączący w sobie innowacyjne rozwiązania z nowoczesnym designem. System ten umożliwia budowanie dużych ruchomych przeszkleń tarasowych z niskim i ciepłym progiem. Jego mechanizmy konstrukcyjne pozwalają na bezpieczne i komfortowe przesuwanie ciężkich skrzydeł, ręcznie lub automatycznie. W systemie zastosowane zostały okucia renomowanych dostawców zapewniające komfortowe przesuwanie nawet bardzo ciężkich skrzydeł. Standardowo zastosowano technologię ANTI-BI-METAL gwarantującą trwałość i prawidłowe funkcjonowanie niezależnie od znacznych różnic temperatur wewnątrz i z zewnątrz pomieszczenia oraz płaskie zaczepy zasuwnicy drzwiowej gwarantujące estetykę i bezpieczeństwo użytkownika.
Drzwi podnoszono-przesuwne w systemie Aluron AS 178HS PRO SLIM sprawdzą się doskonale w budynkach z dużymi przeszkleniami takich jak restauracje czy ogrody zimowe. W budynkach tych istotną rolę odgrywa łatwość przemieszczania się pomiędzy wnętrzem a zewnętrzem budynku, łatwość obsługi, design i walory estetyczne. Drzwi podnoszono-przesuwne w systemie AS 178HS Aluron wyróżniają się bogatą kolorystyką – od klasycznych odcieni po strukturalne i drewnopodobne wykończenia, które doskonale współgrają z różnymi stylami architektury. Ważnym atutem oferowanego rozwiązania jest fakt, iż drzwi AS 178HS PRO SLIM nie zajmują powierzchni wnętrza i dobrze komponują się w każdej aranżacji. Innowacyjna konstrukcja pozwala na uzyskanie najwyższych parametrów izolacyjności termicznej (od 0,7 W/m2K).
System AS 178HS PRO SLIM umożliwia całkowite zabudowanie futryny w warstwie ocieplenia, dzięki czemu podkreślone zostają walory dekoracyjne dekoracyjnych elewacji i nadany zostaje indywidualny i niepowtarzalny charakter budynku. Istnieje możliwość wykonania konstrukcji we wszystkich dostępnych na rynku schematach zabudowy (rozwiązanie z bieżnią dwu i trzytorową, rozwiązanie z możliwością stosowania szklenia stałego w skrzydłach biernych itp.). W ramach systemu drzwi podnoszono-przesuwnych AS 178HS Aluron dostępne są różne warianty szyb: bezpieczne, hartowane, antywłamaniowe, energooszczędne czy akustyczne – dobierane indywidualnie do potrzeb użytkownika.
Bardzo wysoka termika, połączona z nowoczesnym designem. Najważniejszym atutem systemu AS 178HS PRO SLIM jest termika wynosząca nawet Uw=0,7 w/m2K. Ponadto system cechuje się także wyższą odpornością na wodoszczelność (E1200) i wiatr (klasa 4).
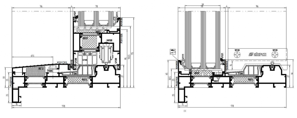
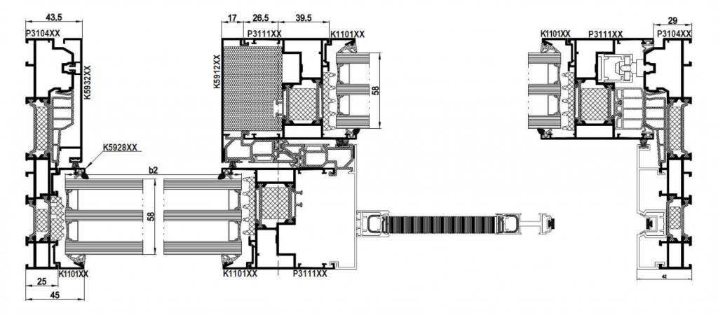
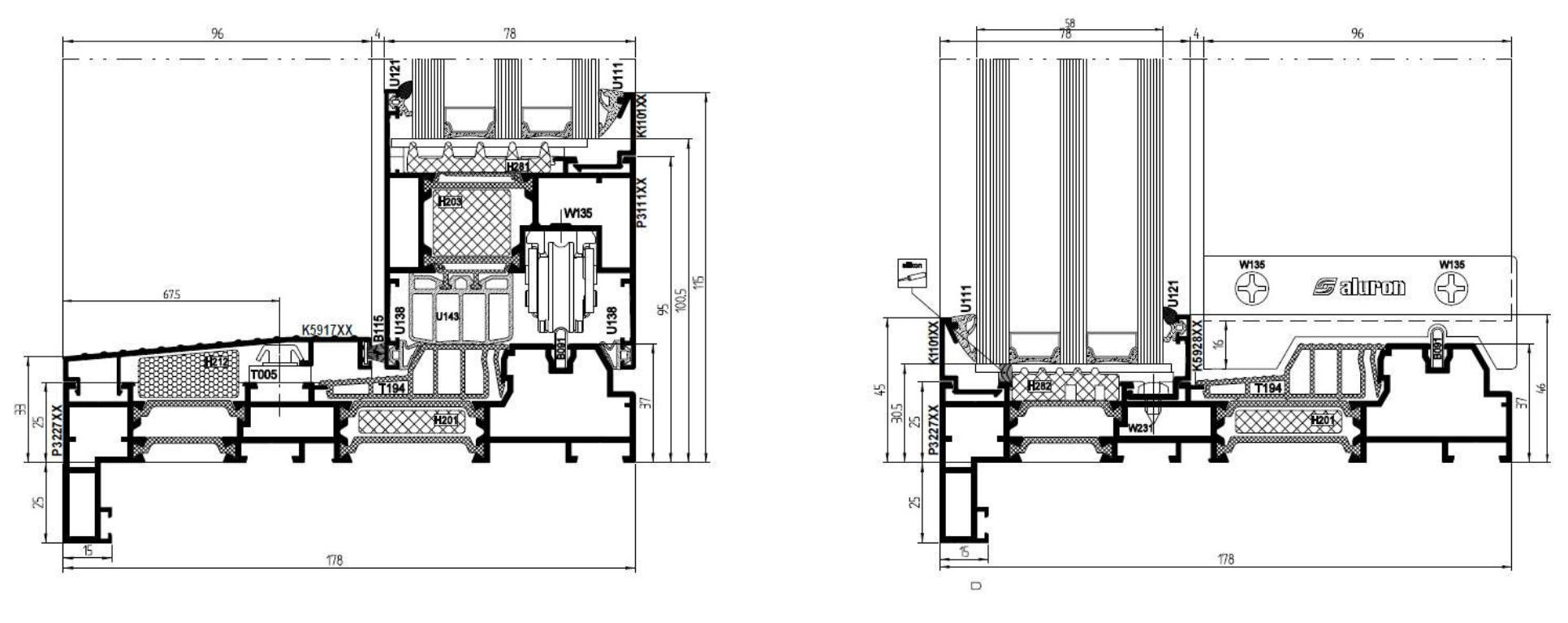
W systemie AS 178HS PRO SLIM zastosowano szereg innowacyjnych rozwiązań technicznych takich jak: systemowe rozwiązanie okładzin całoszklanych na skrzydłach, możliwość uzyskania zabudowy bezprogowej, połączenia zagniatane ram aluminiowych czy możliwość szklenia od wewnątrz i od zewnątrz. Dzięki zastosowaniu systemowego łączenia futryn drzwi w tym systemie osiągnąć mogą maksymalną szerokość, a ich wysokość wynieść może nawet 3300 mm.
|
PROFIL |
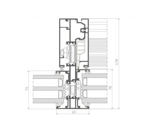
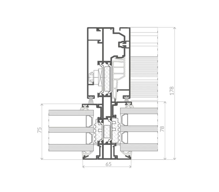
ościeżnica: 78 mm | skrzydło: 84 mm |
|
SZYBY |
standardowo pakiet 4/18/4/18/4 Ug=0,5 W/m2K, ciepła ramka Swisspacer | Możliwość stosowania zespolenia od 14-68 mm | Do wyboru szyby: bezpieczne, hartowane, antywłamaniowe, przeciwsłoneczne, akustyczne, ornamentowe. |
|
OKUCIE |
GU | Dodatkowo okno wyposażone: w zaczepy antywyważeniowe, podnośnik skrzydła, mikrowentylację i blokadę błędnego położenia klamki. |
|
KLAMKI |
Okna - standardowo: klamki aluminiowe Hoppe Secustic: w kolorze: srebrnym, białym 9016, brązowym 8019, antracyt 7016, czarna matowa 9005, złota, inox. |
|
Izolacyjność termiczna Uw |
od 0,7 W/m2K |
|
Przepuszczalność powietrza |
klasa 4 |
|
Wodoszczelność |
klasa E1200 |
|
Odporność na obciążenie wiatrem |
klasa C3/B3 |
|
Izolacyjność akustyczna |
45 (-2;-7) dB |
|
Maksymalna wysokość/szerokość skrzydła |
3300 mm |
|
Maksymalny ciężar skrzydła |
600 kg |
|
Minimalna widoczna szerokość ramy |
37 mm |
|
Wąski słupek |
25 mm, 50 mm |
System występuje także w rozwiązaniu Monorail poprawiącym znacznie walory termiczne, estetyczne a także ułatwiającym montaż konstrukcji.

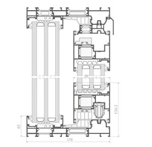
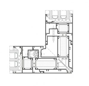
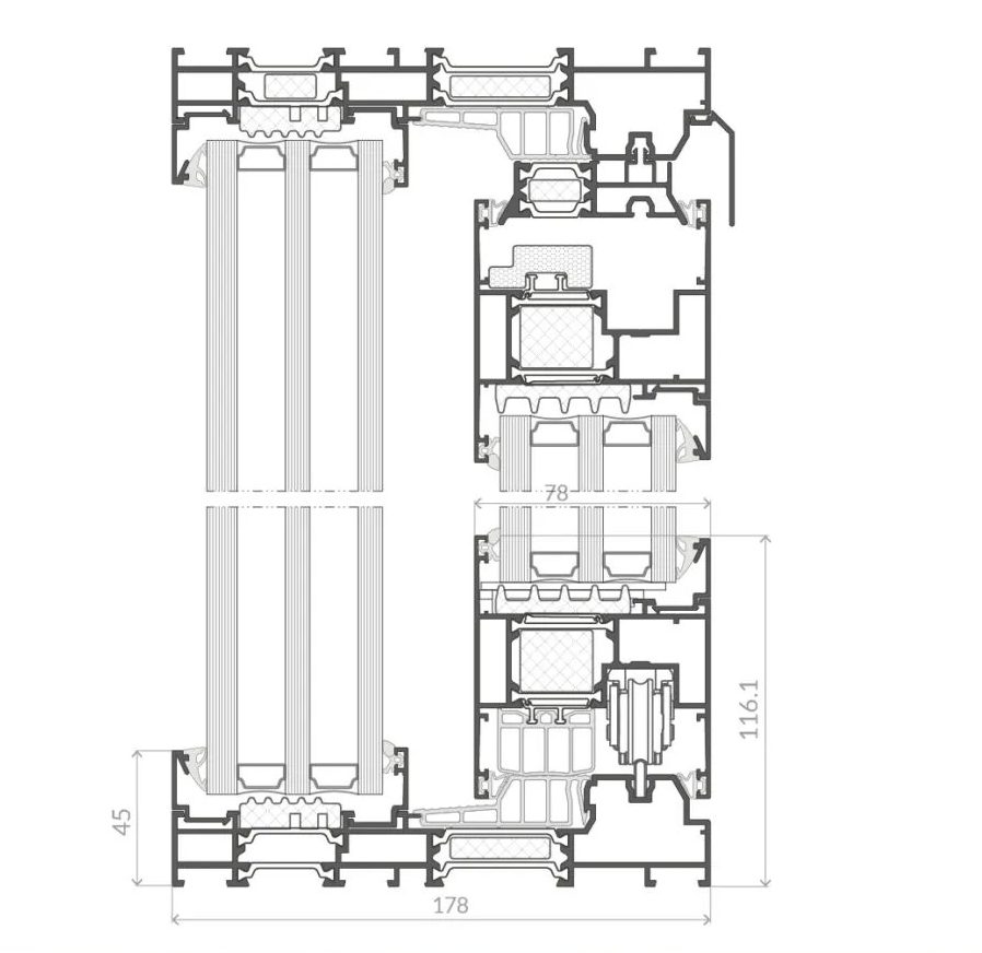
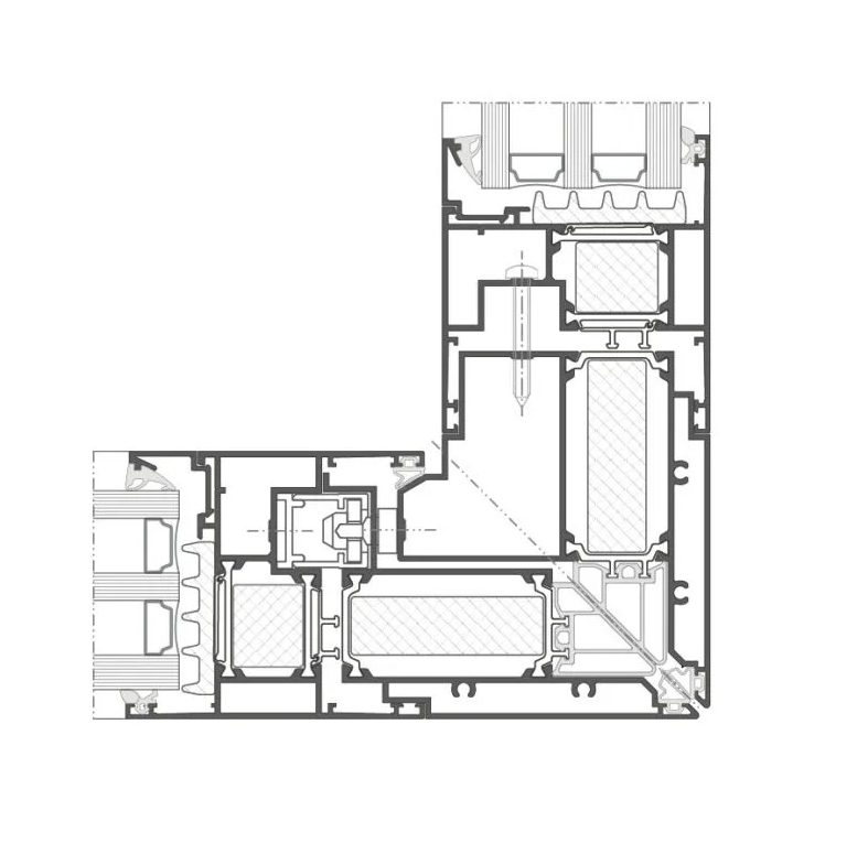
W przypadku konstrukcji narożnych 90 stopni coraz bardziej popularnym rozwiązaniem w miejscu stosowania łącznika z profilu aluminiowego jest zastosowanie połączenia całoszklanego. Inną ciekawą opcją jest zastosowanie szkła stepowanego montowanego na skrzydle. W tym przypadku widoczna jest tylko rama i szyba która zasłania skrzydło i słupek.
HS 178 Pro Slim szkło stepowane

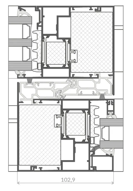
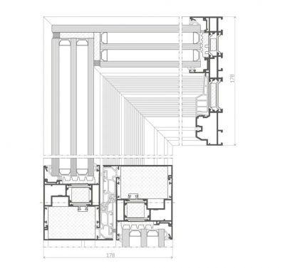
HS 178 Pro Slim narożnik 90 stopni.

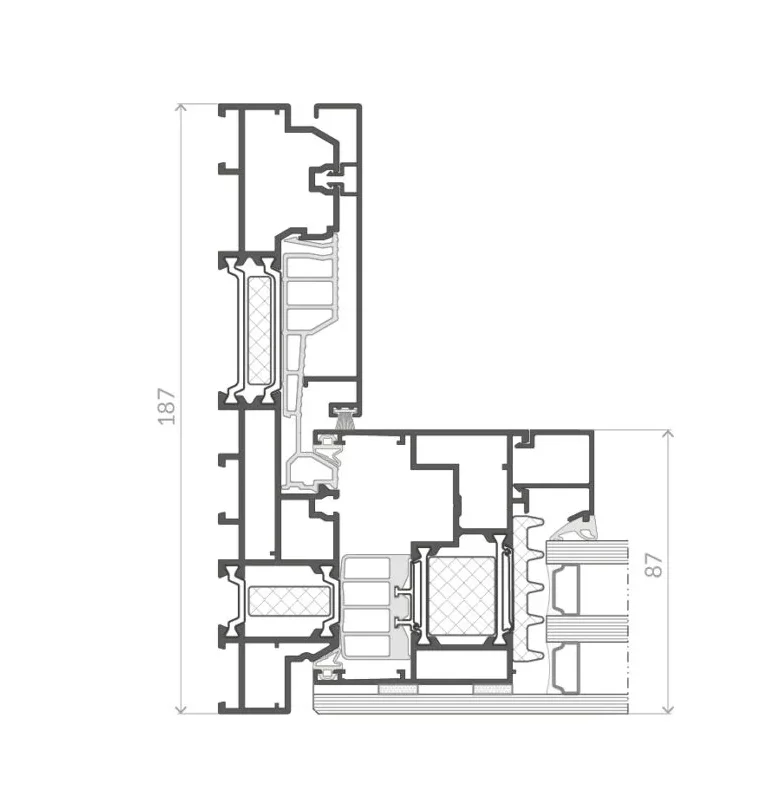
Czasem występuje konieność połączenia ramy HST ze stałym szkleniem czy oknem. Jest na to specjalne rozwiązanie.

System posiada złączni typu T umożliwiające połączenia słupa fasadowego z HST bez konieczności dublowania ościeżnicy.

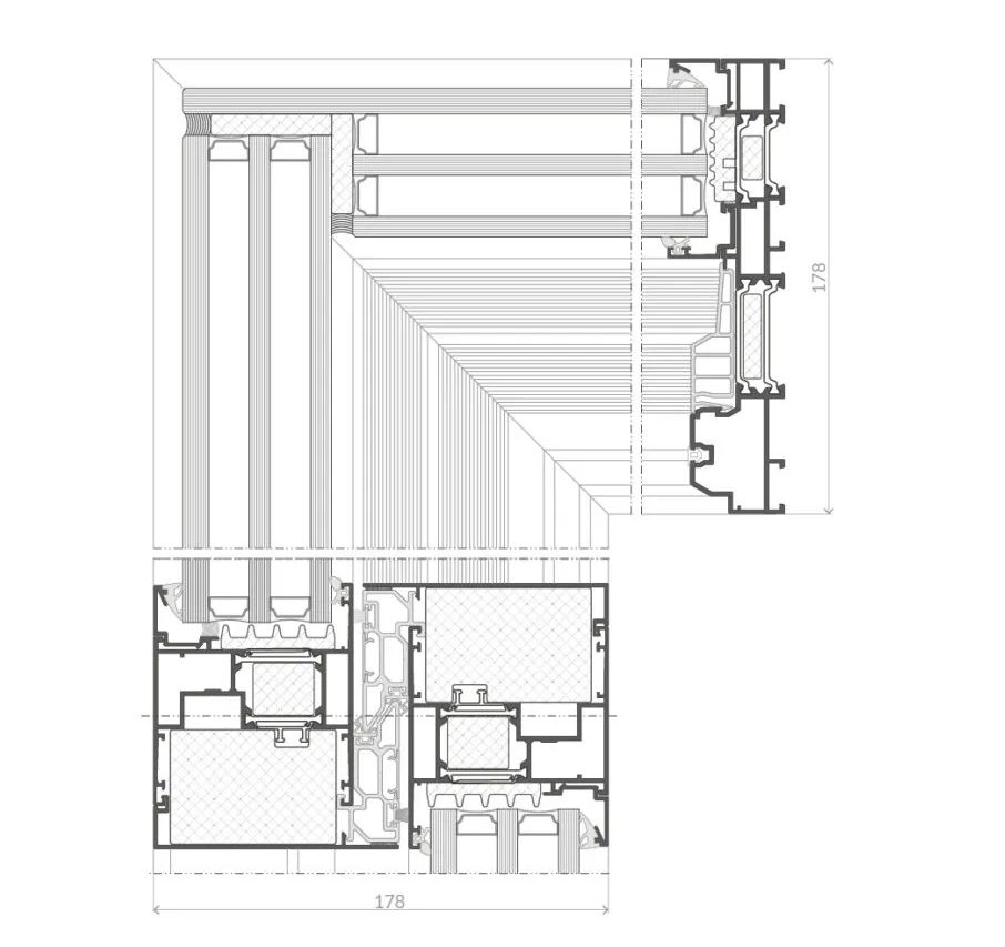
Rozwiązanie niezwykle efektownie. W wariancie Ultra szerokość słupka ma jedynie 25 mm. W celu podniesienia statyki montuje się od wewnątrz i na zewnątrz do czoła słupka profile wzmacniające. Ciekawą opcją jest zamontowanie podświetlenia Led w słupku 25 mm.
HS 178 Pro Slim Ultra słupek 25 mm
HS 178 Pro Slim Ultra słupek 25 mm z puszką statyczną
HS 178 Pro Slim Ultra słupek 25 mm z podświetlenie LED

Nowy kształtownik. Brak widocznych otworów odwadniających od czoła konstrukcji. Grawitacyjne odprowadzenie skroplin poza ościeżnicę HSa.

Integracja w specjalnie przygotowanych profilach. Rama chowa się w profilu, przez co światło przejścia jest większe.

Klienci, którzy zdecydowali się na system drzwi AS 178HS Aluron PRO SLIM, najczęściej podkreślają wrażenie solidności i płynności działania skrzydeł już od pierwszego użycia. Z biegiem czasu doceniają też jego niezawodność – drzwi nie wymagają częstych regulacji, a mechanizm przesuwu wciąż działa lekko i cicho. W wielu opiniach pojawia się również zachwyt nad efektem wizualnym – co nas absolutnie nie dziwi – duże przeszklenia i smukłe profile wprowadzają do wnętrza więcej światła, tworząc wrażenie przestronności.