Zapytaj eksperta!

Genesis 75

System okienno-drzwiowy o najwyższych właściwościach termoizolacyjnych

 
Genesis 75

charakterystyka

Genesis 75 to innowacyjny, trójkomorowy system okienny o najwyższych właściwościach termoizolacyjnych, spełniających wymagania obowiązujące od roku 2021. Okna w systemie Genesis 75 charakteryzują się bardzo niskim współczynnikiem izolacyjności termicznej Uf od 0,84 W/m2Km, który został osiągnięty poprzez zastosowanie kształtowników ram o szerokości 75 mm oraz najnowocześniejszych materiałów izolacyjnych. Zastosowanie dodatkowej uszczelki termicznej obok standardowej uszczelki centralnej, pozwoliło na uzyskanie bardzo wysokiej szczelności okien, zachowując przy tym nowoczesny design. System Aliplast Genesis wyróżnia się także trwałością profili, które zapewniają stabilność konstrukcji nawet przy dużych przeszkleniach.

ZALETY SYSTEMU

Doskonały stosunek termiki do ceny

Genesis 75 to nowoczesny, trójkomorowy system okienno-drzwiowy o najwyższych właściwościach termoizolacyjnych, spełniających wymagania zgodne z dyrektywą europejską 2010/31/U obowiązującą od 1 stycznia 2021 roku. Według tych przepisów, wszystkie nowo wybudowane budynki powinny charakteryzować się minimalnym zapotrzebowaniem na energię niezbędną do ich ogrzewania. Okna w systemie Genesis 75 charakteryzują się bardzo niskim współczynnikiem izolacyjności termicznej Uf od 0,84 W/m2K, który został osiągnięty poprzez zastosowanie profili ram o głębokości 75 mm oraz materiałów izolacyjnych będących nowością na rynku. Decydując się na okna i drzwi Genesis 75 wybierasz najlepszą termikę w przystępnej cenie!

Doskonały stosunek termiki do ceny. Okna i drzwi Genesis 75. Profilnet Tarnowskie Góry Śląsk Silesia
Współgra z ProThermo 75 i RC3

Dzięki różnorodności profili oferowanych w ramach systemu, możliwe jest projektowanie wszelakich konstrukcji okiennych, drzwi i witryn, wykorzystywanych zarówno w budynkach użyteczności publicznej, jaki i w zabudowie jedno i wielorodzinnej. Profile Genesis są kompatybilne z drzwiami ProThermo 75 oraz SafeThermo 75 – nowością na rynku – drzwiami bezpiecznymi w klasie RC3 z certyfikatem IFT Rosenheim.

Współgra z Prothermo 75 i RC3. Okna i drzwi Genesis 75. Profilnet Tarnowskie Góry Śląsk Bytom Katowice
Okna energoszczędne

Zastosowanie dodatkowej uszczelki termicznej obok standardowej uszczelki centralnej, pozwoliło na uzyskanie bardzo wysokiej szczelności okien, zachowując przy tym nowoczesny design. To połączeniem najwyższej ergonomii użytkowania oraz nowoczesnej estetyki profili, dzięki której możliwe jest projektowanie konstrukcji okna o indywidualnym charakterze i nowatorskim wyglądzie. Dopracowana konstrukcja systemu Aliplast Genesis zapewnia stały komfort cieplny i akustyczny niezależnie od pory roku.

Okno Genesis z ukrytym skrzydłem

Minimalistyczny design, który pokochasz: ukryte skrzydło i zawiasy, ukryte odwodnienie, klamka w kolorze konstrukcji, bez rozetki, niski próg w drzwiach balkonowych. Ukryte skrzydło nadaje wygląd jednolitej tafli szkła, jak w nowoczesnych fasadach aluminiowo-szklanych. Maksymalna przeszklona powierzchnia to jaśniejsze wnętrze i optycznie większa przestrzeń. W pełni funkcjonalne okno aluminiowe. Wygodne, otwierane okno o wyglądzie stałego szklenia.

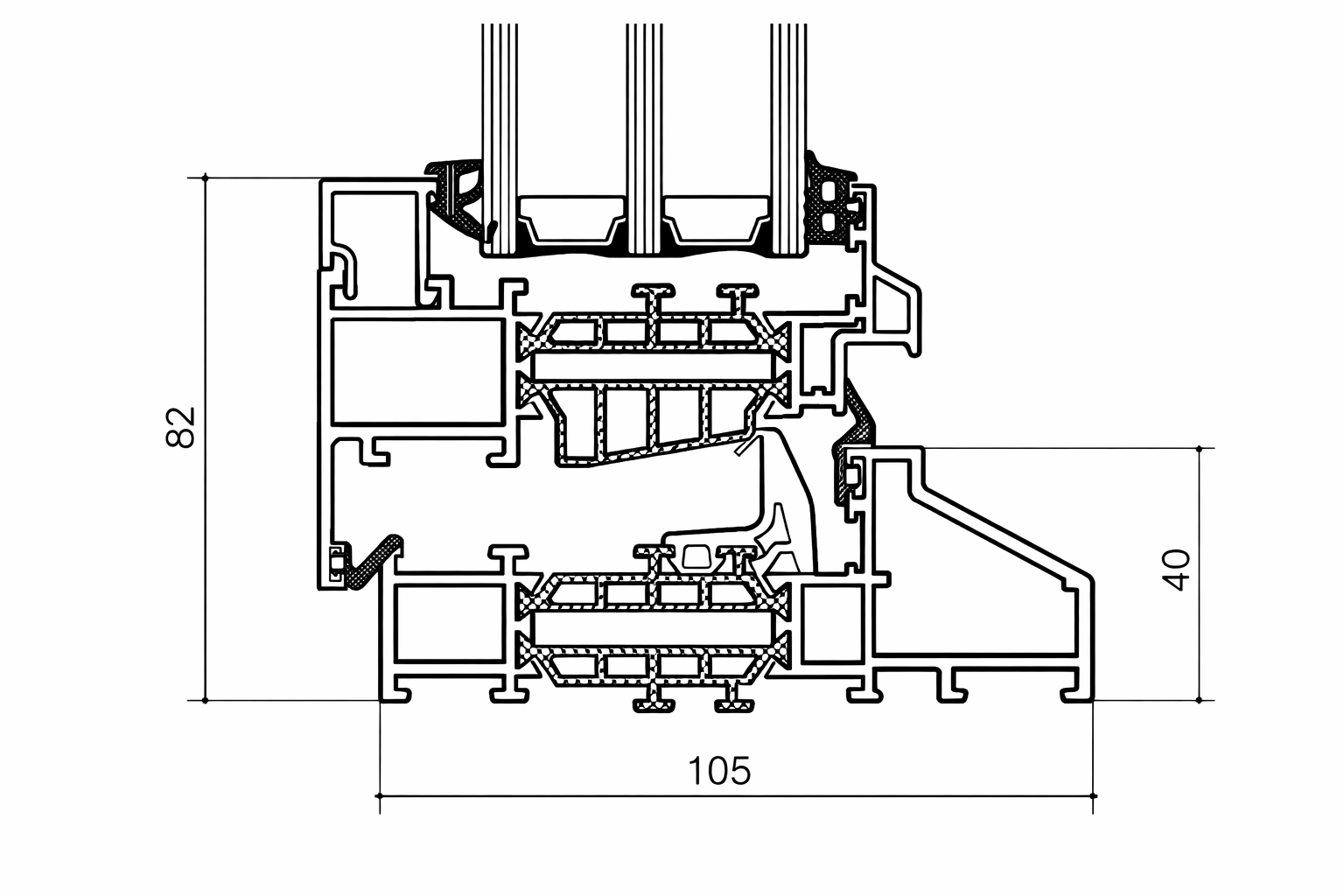
PRZEKROJE

PROFIL

ościeżnica: 75 mm | skrzydło: 84 mm

SZYBY

standardowo pakiet 4/18/4/18/4  Ug=0,5 W/m2K, ciepła ramka Swisspacer | Możliwość stosowania zespolenia od 14-61 mm | Do wyboru szyby: bezpieczne, hartowane, antywłamaniowe, przeciwsłoneczne, akustyczne, ornamentowe

OKUCIE

GU | Dodatkowo okno wyposażone: w zaczepy antywyważeniowe, podnośnik skrzydła, mikrowentylację i blokadę błędnego położenia klamki. W drzwiach można zastosować zamek 1-punktowy lub okucie GU Secury z 3-punktowym ryglowaniem. Istnieje możliwość zakupu okien i drzwi w klasie bezpieczeństwa RC 1 i RC 2.

KLAMKI

Okna - standardowo: klamki aluminiowe Hoppe Secustic: w kolorze: srebrnym, białym 9016, brązowym 8019, antracyt 7016, czarna matowa 9005, złota, inox. | Drzwi wejściowe - standardowo klamki i pochwyty ze stali nierdzewnej.

Opinie o Aliplast Genesis 75

Użytkownicy systemu Aliplast Genesis 75 podkreślają przede wszystkim jego doskonałą izolacyjność cieplną oraz solidne wykonanie. Nic dziwnego – potwierdzają to wszystkie jego parametry. W opiniach często pojawia się również informacja o łatwości obsługi i płynności działania mechanizmów otwierania. Właściciele domów i inwestorzy cenią ten system okienno-drzwiowy za niezawodność i długą żywotność, które idą w parze z wysokim komfortem użytkowania.

kolory

Kolory standardowe
kolory niestandardowe
KOLORY DREWNOPODOBNE
TIGER - lakier strukturalny

Galeria